Home »
09 JAN 2016
Vila de Rei - Lotes do Vale Galego em Hasta Pública
Por Jornal Abarca

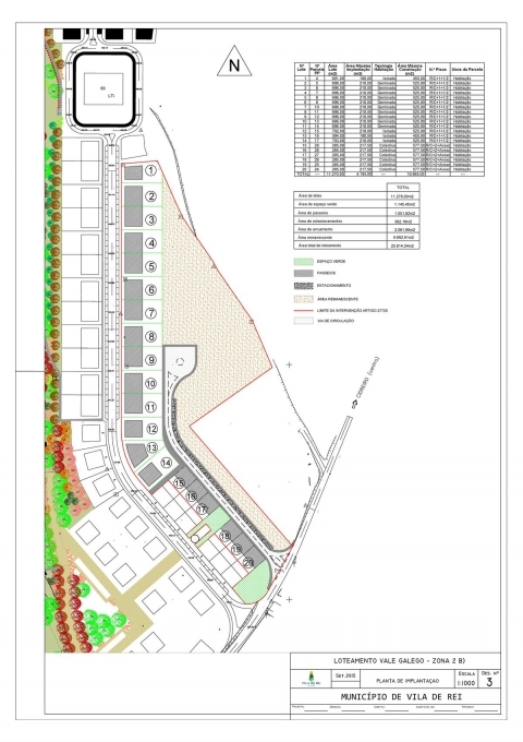
O Executivo Municipal de Vila de Rei aprovou, em reunião ordinária de 5 de janeiro, a abertura de Hasta Pública para a venda de lotes no Loteamento Vale Galego – Fase 2B.

 Encontram-se disponíveis para aquisição 20 lotes, com um valor base de 22,5€ por metro quadrado.

Os interessados deverão entregar as suas propostas, contra recibo ou por via postal sob registo e com aviso de receção, na Divisão Financeira de Património e Ambiente da Câmara Municipal de Vila de Rei até às 16h00 de 30 de março.

A abertura das propostas será feita em sessão pública, na Sala das Sessões do edifício dos Paços do Concelho, pelas 15h00 do dia 31 de março, nela podendo participar os concorrentes ou os seus representantes devidamente credenciados.

 O Programa de Procedimento e o respetivo Caderno de Encargos podem ser consultados em www.cm-viladerei.pt.

(0) Comentários
Escrever um Comentário
Nome (*)

Email (*) (não será divulgado)

Website

Comentário

Verificação
Autorizo que este comentário seja publicado



Comentários

PUB
crónicas remando
PUB
CONSULTAS ONLINE
Interessa-se pela política local?
Sim
Não
© 2011 Jornal Abarca , todos os direitos reservados | Mapa do site | Quem Somos | Estatuto Editorial | Editora | Ficha Técnica | Desenvolvimento e Design